■ノブレス横浜

コンセプト

横浜駅徒歩圏内、『安く』て『プライバシー重視』のいいとこどりの新築女性専用シェアハウス、シェアアパートメント【ノブレス横浜】がオープンしました。ヨーロッパ調のお洒落で上品な重厚感のある外観。共用のリビング&ダイニングを無くし、入居者のプライバシーを最大限重視して設計された建物です。お部屋は全12室。家具家電有り、無しを選べます。利便性のいい場所でアパートよりも格安に暮らしたい、でもシェアハウスの煩わしさは苦手。そんな女性は是非一度ご見学にいらしてください。一人暮らしに飽きたかも、と思ったら・・・。一歩踏み出して、横浜でホテルライクな生活、試してみませんか?

ノブレス横浜コンセプト

ロケーション

JR横浜駅から徒歩16分(バス停:浅岡橋2分)

相鉄線平沼橋徒歩13分、天王町駅徒歩14分

ターミナル駅横浜駅まで平坦で歩けます。雨の日はバスを利用すれば雨に濡れることもありません。タクシーでも1000円以内で帰宅できるので飲み会などで遅くなっても安心です。どこに行くにもアクセスは良好です。


【周辺マップ】

入居条件

このシェアハウスは女性限定です。

ご入居にあたってはノブレス横浜の入居規約を必ずお守りください。

ハウスのご説明

2018年4月新築のシェアアパートメントです。

■共用部について

キッチン2(電子レンジ2・トースター2・電子ケトル2・炊飯器2)、シャワー4・トイレ4・洗面所4・洗濯機4

■専有部について

各居室にはエアコンがついています。

各部屋TVは取り付け可能な状態です。

各部屋よりインターネットが繋がります。

■駐車場・駐輪場について

6台分の駐輪場あります。(300円/月)

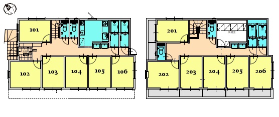
間取り・ルームプラン

ルームプラン

部屋番号 賃料 広さ 設備 状況
101 ¥48,000 7.25m² エアコン、照明、カーテン、ベッド&マットレス、デスク&チェアー、ハンガーラック、冷蔵庫、床下収納庫 満室
102 ¥50,000 8.7m² エアコン、照明、カーテン、ベッド&マットレス、デスク&チェアー、ハンガーラック、冷蔵庫、床下収納庫 満室
103 ¥46,000 7.25m² エアコン、照明、ベッド&マットレス、デスク&チェアー、ハンガーラック、冷蔵庫、カーテンレール、室内物干し 満室
★104 ¥40,000 7.25m² エアコン、照明、カーテンレール、床下収納庫、室内物干し 満室
★105 ¥40,000 7.25m² エアコン、照明、カーテンレール、室内物干し 満室
106 ¥49,000 7.25m² エアコン、照明、カーテン、ベッド(収納ケース付)、ドレッサー、ハンガーラック、冷蔵庫、床下収納庫 満室
201 ¥51,000 7.25m² エアコン、照明、ベッド&マットレス(引出し付)、デスク&チェアー、ハンガーラック、冷蔵庫、バルコニー 満室
202 ¥51,000 8.7m² エアコン、照明、ベッド&マットレス(引出し付)、デスク&チェアー、ハンガーラック、冷蔵庫、バルコニー 満室
★203 ¥48,000 7.25m² エアコン、照明、バルコニー ※家具家電なし 満室
204 ¥49,000 7.25m² エアコン、照明、ベッド、ハンガーラック、冷蔵庫、バルコニー 満室
★205 ¥41,000 7.25m² エアコン、照明、バルコニー 満室
206 ¥52,000 7.25m² エアコン、照明、ベッド(収納ケース付)、ドレッサー(椅子付)、ハンガーラック、冷蔵庫、バルコニー 満室

※★マークのお部屋は家具家電の設置はありません。

■共益費

月額¥15,000

  • ・共益費には、電気、ガス、水道、インターネット使用料が含まれます。
  • ・ハウス内で規定額をオーバーした費用については入居者様での均等割となります。

初期費用(ご入居時ご精算)

火災保険料:¥8,000(税別)(1年)

保証会社加入料:賃料総額の50%※学生割引有

鍵交換費用:¥10,000(税別) 

保証金:¥38,500(うちルームクリーニング料 ¥16,500償却 )


※更新の際は再契約事務手数料:¥10,000(税別)が必要です。

写真ギャラリー

こんな人に向いています

最後に、『ノブレス横浜はこんな方に向いています!リスト』です。参考にしてみてください。

  • ・横浜駅から自宅まで歩いて帰りたい。
  • ・終電を逃しがち。
  • ・やっぱり築浅のおうちがいい。
  • ・密すぎる交流はちょっと苦手。
  • ・そうは言ってもおうちにだれか居ると安心する。
  • ・お掃除は極力だれかにお願いしたい派。

1つでも当てはまると思った方は、お問い合わせページへどうぞ。

皆様からのお問い合わせ、心よりお待ちしております。

ご案内

※ノブレス横浜は委託物件のため弊社運営シェアハウス【オリーブビレッジ横浜】とは契約形態やハウスルールが異なります。保証会社の審査は必須となります。詳細はお問い合わせください。

Copyright(c) 2016 oLiveWorks LCC. All Rights Reserved.